入门级如何看懂TCL暖通CAD图纸

艾肯家电网
原标题:入门级如何看懂TCL暖通CAD图纸

激流勇进,未来可期
暖通专业主要囊括的系统有:采暖、通风、新风、空调、防排烟、燃气等。而采暖设计是所有项目都会有的系统。其他项目看楼层项目设计说明即可。

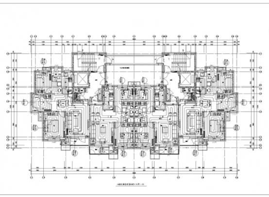
采暖系统:看设备,看管道
散热器和地面辐射管道,即暖气片和地热——是末端的两种供暖设备,另外还有前些年的暖气片。目前,地热比较受大众的喜欢。(如下图CAD图标所示)


地热是地下铺设盘管,一般来说,当交由专业厂家设计CAD图纸时,只会示意盘管前的部分,即集水器(位置通常在燃气灶下),也就是所谓的水分配器,然后这个集水器的前段再接供回水的主干管道。高层——接到水暖井里,别墅——就是从室外进来,埋地的。

通风系统
简单来说就是排风扇,涉及到强弱电间、卫生间、电梯机房等。强弱电间、电梯机房这种设备房安装的暖通上会叫轴流风机,一般是嵌装上去的。卫生间的有吸顶或者同机房一样嵌墙的。吸顶的,住过酒店的见过卫生间灯盘管有个类似风扇的东西,就是那个,嵌墙就是吸顶变成了墙上而已。

新风系统
高层住宅二层往上会有,一层不设。如果你家是单元楼两端的住户,那就在卫生间的吊顶里,你看不到的。如果你家是单元中间住户,设备在你家阳台的吊顶里,你也看不到。如果有新风机的话,你在进门处玄关那里会看到一个面板,类似柜式空气净化器的那种的缩小型按键面板。
这里提供三种方式供参考:



空调系统
暖通中,中央空调在CAD图纸中会有画图,分体空调就给个位置。中央空调常见于办公楼啊、商场啊、医院啊之类的,比如一进办公室打开的那个空调面板就是风机盘管机或天花机。

防排烟系统、燃气
防排烟系统比较复杂。只有当自然排烟满足不了时,才会上防排烟系统,也就是机械排烟。主要有风机和管道,暖通图上会标注。电气看风机,建筑看管道穿墙位置。
燃气系统画图一般都是以燃气专业公司设计为准,前期暖通会确定下进户管位置,以及燃气表立管及表的位置。管是个圈,表会是个矩形的方框。位置再厨房,这个可以具体问暖通设计。这块主要是暖通提给建筑图示意,还有电气设备躲避。

暖通专业一定要夯实防排烟这方面知识,这部分同电气专业密切相关,反之,会影响前提条件的准确性。
此数据来源CAD自学网